Trong lĩnh vực xây dựng và kiến trúc hiện đại, việc sử dụng các vật liệu cao cấp và hiệu quả luôn là mục tiêu hàng đầu để đảm bảo tính thẩm mỹ và chất lượng công trình. Nhôm mặt dựng 52x100 đã nhanh chóng trở thành lựa chọn ưu việt nhờ vào những đặc tính vượt trội của nó. Được sản xuất từ chất liệu nhôm cao cấp đạt tiêu chuẩn Châu Âu, hệ nhôm mặt dựng kính 52x100 không chỉ mang lại vẻ đẹp hiện đại, sang trọng mà còn đáp ứng những yêu cầu khắt khe về cách âm, cách nhiệt, và độ bền bỉ. Sự kết hợp hoàn hảo giữa thanh profile nhôm, hệ kính chất lượng, cùng với các phụ kiện cao cấp như gioăng EFDM và keo chống thấm đã tạo nên một giải pháp hoàn hảo cho các công trình kiến trúc đòi hỏi tính an toàn và hiệu quả cao.
1. Giới thiệu về nhôm mặt dựng 52x100

Với sự phát triển không ngừng của ngành công nghiệp xây dựng, nhu cầu về các loại vật liệu mới, có khả năng cải thiện hiệu suất công trình ngày càng tăng cao. Nhôm mặt dựng là một trong những vật liệu đã chứng minh được tính ưu việt của mình trong nhiều công trình hiện đại.
Nhôm mặt dựng 52x100 là một loại vật liệu xây dựng tiên tiến được sử dụng rộng rãi trong các công trình kiến trúc hiện đại. Với kích thước chuẩn 52x100 mm, thanh nhôm này được sản xuất theo tiêu chuẩn cao cấp của Châu Âu, đảm bảo về mặt chất lượng và hiệu suất. Được thiết kế để phù hợp với nhiều loại kính khác nhau như kính cường lực, kính phản quang, kính an toàn và kính hộp, nhôm mặt dựng kính 52x100 không chỉ cung cấp giải pháp cách âm, cách nhiệt hiệu quả mà còn giúp tạo nên vẻ ngoài sang trọng, hiện đại cho công trình.
2. Đặc điểm của nhôm mặt dựng 52x100

Nhôm mặt dựng 52x100 được đánh giá qua các đặc điểm về chất liệu, tiêu chuẩn sản xuất, tính năng kỹ thuật và khả năng ứng dụng trong thiết kế xây dựng hiện đại.
Chất liệu và tiêu chuẩn của nhôm mặt dựng 52x100
Nhôm mặt dựng 52x100 được làm từ chất liệu nhôm cao cấp, đạt tiêu chuẩn Châu Âu, đảm bảo về mặt độ bền và khả năng chống chịu các tác động của môi trường. Nhôm không chỉ nhẹ mà còn có khả năng chống ăn mòn, giúp kéo dài tuổi thọ của công trình. Việc sử dụng nhôm 52x100 trong các công trình xây dựng hiện đại không chỉ đảm bảo tính bền vững mà còn giúp giảm chi phí bảo trì trong quá trình sử dụng.
Hệ kính và tính năng
Nhôm mặt dựng 52x100 có khả năng kết hợp với nhiều loại kính khác nhau, tạo nên sự đa dạng trong thiết kế và ứng dụng. Các loại kính phổ biến được sử dụng bao gồm kính cường lực, kính phản quang, kính an toàn và kính hộp.
Các loại kính sử dụng: kính cường lực, kính phản quang, kính an toàn, kính hộp
-
Kính cường lực: Được biết đến với độ bền cao, khả năng chịu lực tốt và an toàn khi vỡ.
-
Kính phản quang: Giúp giảm nhiệt độ và cản tia UV, bảo vệ không gian nội thất.
-
Kính an toàn: Được sản xuất với lớp màng bảo vệ, giữ các mảnh vỡ lại khi bị va đập.
-
Kính hộp: Hai lớp kính được ghép lại với nhau, tạo khoảng trống ở giữa để cách âm và cách nhiệt tốt hơn.
Khả năng cách âm, cách nhiệt

Nhôm mặt dựng 52x100 kết hợp với các loại kính chất lượng cao giúp tăng cường khả năng cách âm, cách nhiệt. Điều này không chỉ tạo ra không gian sống và làm việc thoải mái mà còn giúp tiết kiệm năng lượng, giảm chi phí điều hòa không khí.
Bảng mã và gioăng
Chất liệu sắt, mạ kẽm, kiểm định chất lượng
Bảng mã của vách mặt dựng nhôm được gia công từ sắt, mạ kẽm và đã được kiểm định chất lượng trước khi lắp đặt. Điều này đảm bảo rằng bảng mã có độ bền cao, chịu được các tác động từ môi trường và thời tiết khắc nghiệt.
Gioăng EFDM, cao su tổng hợp, chống lão hóa
Hệ gioăng EFDM làm từ cao su tổng hợp, có tính năng chống lão hóa, đảm bảo độ kín khít tuyệt đối cho vách mặt dựng. Điều này giúp ngăn chặn sự xâm nhập của nước và không khí, bảo vệ công trình khỏi các tác động xấu từ môi trường.
Keo và phụ kiện
Keo kết cấu và keo thời tiết, chống thấm
Sử dụng keo kết cấu và keo thời tiết với độ chống thấm tuyệt đối giúp bảo vệ các mối nối, đảm bảo sự bền vững và an toàn cho công trình.
Phụ kiện Kinlong, ốc, vít, bu lông thép không gỉ
Các phụ kiện như ốc, vít, bu lông chủ yếu của Kinlong được làm từ thép không gỉ, đảm bảo độ bền và khả năng chịu lực tốt. Những phụ kiện này là yếu tố quan trọng trong việc đảm bảo tính an toàn và thẩm mỹ cho hệ vách mặt dựng.
3. Ưu điểm của hệ nhôm mặt dựng 52x100

Hệ nhôm mặt dựng 52x100 mang lại nhiều ưu điểm vượt trội như độ kín khít, tính linh hoạt trong thiết kế, khả năng chống va đập và chịu lực cao, cùng với sự bền vững và thẩm mỹ cho công trình.
Độ kín khít và bền vững
Một trong những ưu điểm nổi bật của nhôm mặt dựng 52x100 là khả năng tạo độ kín khít tuyệt đối, không xuất hiện kẽ hở. Điều này không chỉ giúp bảo vệ công trình khỏi các yếu tố môi trường như gió, mưa mà còn cải thiện hiệu suất cách âm, cách nhiệt.
Kết cấu và thẩm mỹ
Nhôm mặt dựng 52x100 có kết cấu nổi đố, cho phép các nẹp ngang và nẹp dọc lộ hoàn toàn trên bề mặt công trình. Kết cấu này không chỉ mang đến sự chắc chắn mà còn tạo hiệu ứng thẩm mỹ cao, làm cho công trình trở nên hiện đại và sang trọng.
Tải trọng và tính an toàn
Nhôm 52x100 có tải trọng nhẹ, giúp việc lắp ghép trở nên thuận tiện và nhanh chóng hơn. Đồng thời, tính năng này còn đảm bảo an toàn tối đa cho công trình, giảm nguy cơ về các sự cố liên quan đến cấu trúc và trọng lượng.
Chống va đập và chịu lực
Khả năng chống va đập và chịu lực của nhôm mặt dựng 52x100 là một trong những đặc tính quan trọng, giúp bảo vệ công trình khỏi các tác động cơ học và gió giật. Điều này đặc biệt quan trọng đối với các công trình cao tầng và những khu vực có điều kiện thời tiết khắc nghiệt.
Linh hoạt trong thiết kế
Nhôm mặt dựng 52x100 có tính linh hoạt cao trong thiết kế, có thể ứng dụng trên các bề mặt phẳng, uốn cong hoặc lượn sóng. Điều này mở ra nhiều khả năng sáng tạo cho các kiến trúc sư, giúp họ dễ dàng thực hiện những ý tưởng thiết kế độc đáo và ấn tượng.
Bảo vệ bề mặt nhôm
Bề mặt của nhôm mặt dựng 52x100 được bảo vệ bởi một lớp màng film nhập khẩu, giúp chống trầy xước và duy trì vẻ ngoài đẹp mắt trong suốt quá trình sử dụng. Điều này không chỉ kéo dài tuổi thọ của vật liệu mà còn giúp duy trì giá trị thẩm mỹ của công trình.
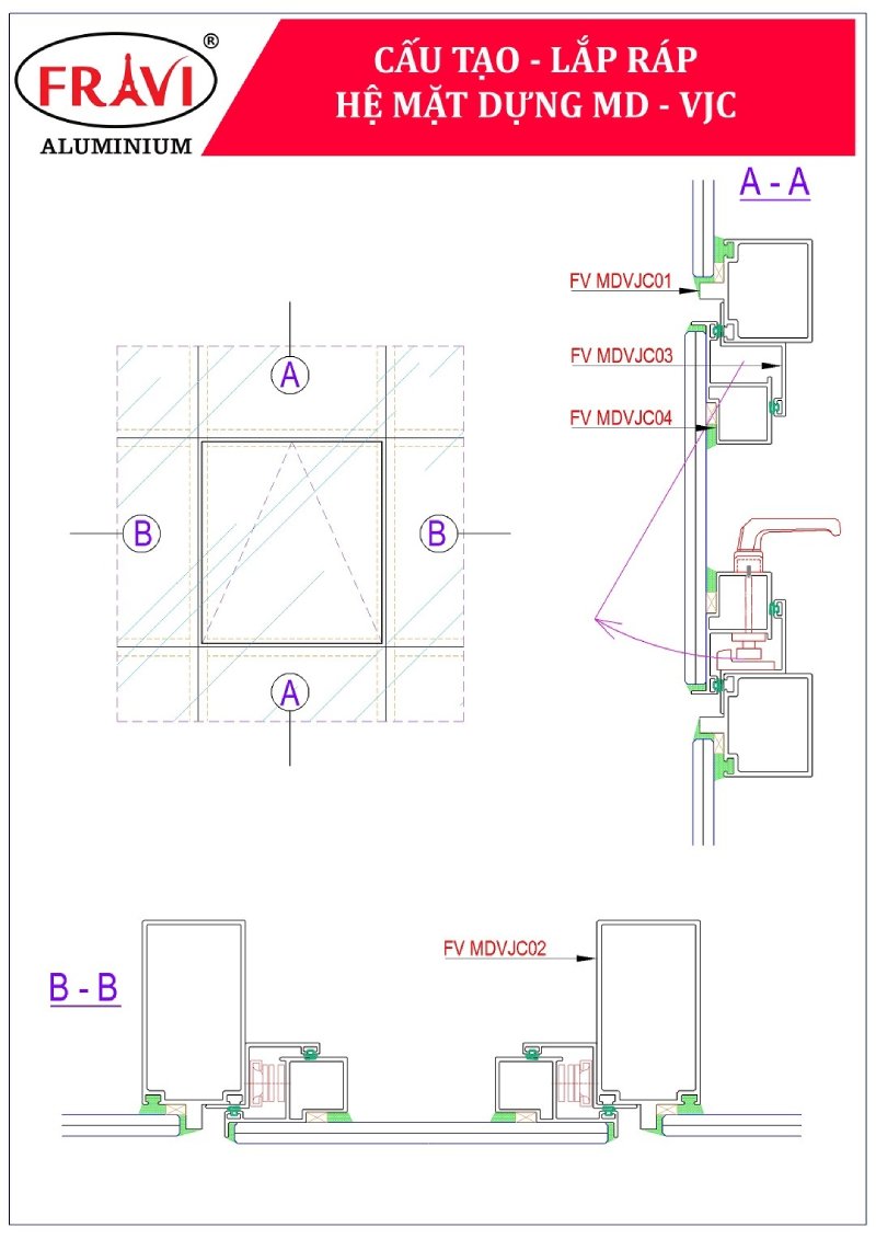
4. Các bước thi công vách nhôm mặt dựng 52x100 lộ đố

Quy trình thi công vách nhôm mặt dựng 52x100 lộ đố được thực hiện qua các bước chính xác và tiến hành một cách tỉ mỉ để đảm bảo tính an toàn và hiệu quả cho công trình.
Bước 1: Lắp bảng mã cho kính
Trong bước đầu tiên, bảng mã sẽ được liên kết với chanel đã được dựng sẵn từ trước. Việc kiểm tra kỹ hệ thống bảng mã vừa liên kết là vô cùng quan trọng để đảm bảo tính chính xác và an toàn trước khi tiến hành các bước tiếp theo.
Bước 2: Lắp khuôn của mặt dựng kính
Sau khi lắp bảng mã, tiếp tục lắp thanh đố đứng, sau đó là thanh đố ngang liên kết với thanh đố đứng. Việc lắp đặt chính xác các thanh đố này giúp đảm bảo sự vững chắc và thẩm mỹ cho hệ mặt dựng.
Bước 3: Lắp mặt dựng kính
Trong bước này, chuẩn bị giàn giáo có dây đu, cao su kê kính, xốp tròn chèn kính, gioăng cao su và silicone. Kính sẽ được lắp từ phía ngoài bằng các dụng cụ nâng kính chuyên dụng. Đối với các vị trí cao hơn, cần sử dụng giàn giáo dây đu để đảm bảo an toàn và hiệu quả. Sau khi lắp kính, những khu vực đã hoàn thành sẽ được đánh dấu để thuận tiện cho việc kiểm tra và hoàn thiện.
Bước 4: Bơm silicon chống thấm
Bước cuối cùng trong quy trình thi công là bơm silicon chống thấm tại các khu vực khung bao ngoài và tường. Việc bơm silicon cần phải được thực hiện tỉ mỉ và chất lượng để đảm bảo không có khe hở, ngăn chặn sự xâm nhập của nước và không khí. Sau khi bơm xong, tiến hành vệ sinh sạch sẽ các khu vực thi công để hoàn tất quá trình lắp đặt.
Lời kết
Nhôm mặt dựng 52x100 không chỉ là một giải pháp xây dựng đơn thuần mà còn là một bước tiến lớn trong ngành kiến trúc hiện đại. Với khả năng chống va đập, chịu lực tốt, và chống gió giật, sản phẩm này đảm bảo sự an toàn tối đa cho công trình. Hơn thế nữa, tính linh hoạt trong tạo hình, từ các bề mặt phẳng đến uốn cong hay lượn sóng, cùng với khả năng duy trì vẻ ngoài không bị trầy xước nhờ lớp màng film nhập khẩu, nhôm mặt dựng kính 52x100 thực sự là một lựa chọn lý tưởng cho những công trình đòi hỏi sự hoàn mỹ và bền vững. Việc thi công dễ dàng, nhanh chóng với các bước lắp đặt rõ ràng càng làm tăng thêm giá trị của sản phẩm này. FRAVI tin rằng, nhôm mặt dựng kính 52x100 không chỉ mang lại hiệu quả cao trong sử dụng mà còn góp phần nâng cao giá trị thẩm mỹ và bền vững cho mọi công trình.